Villetta trifamiliare - Quattro Strade di Bientina (PI)

Descrizione

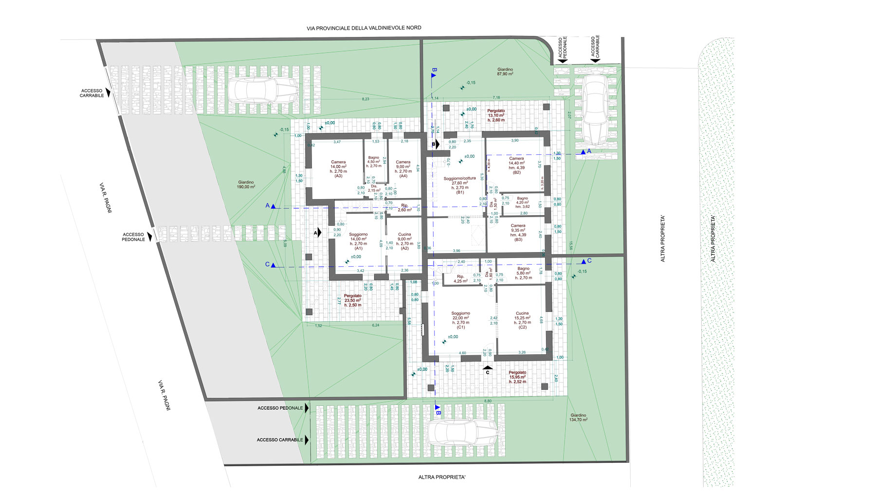
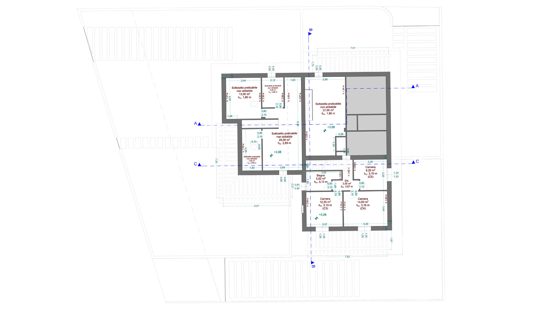
L'intervento ha riguardato la progettazione e la modellazione BIM di tre edifici contigui di due piani fuori terra con destinazione residenziale, più precisamente trattasi di civile abitazione posta al piano terra oltre sottotetto praticabile-non abitabile, avente ingresso indipendente pedonale e carraio, corredata da ampio resede esclusivo su due lati e pergolato sul prospetto Ovest. 
L'unità immobiliare risulta in classe energetica "A2".

 

 

 

 

villetta trifamiliare 4 strade bientina BIM 01   villetta trifamiliare 4 strade bientina BIM 02   villetta trifamiliare 4 strade bientina BIM 03   villetta trifamiliare 4 strade bientina BIM 04

villetta trifamiliare 4 strade bientina BIM 05   villetta trifamiliare 4 strade bientina BIM 06   villetta trifamiliare 4 strade bientina BIM 07   villetta trifamiliare 4 strade bientina BIM 08

villetta trifamiliare 4 strade bientina BIM 09   villetta trifamiliare 4 strade bientina BIM 10   villetta trifamiliare 4 strade bientina BIM 12   villetta trifamiliare 4 strade bientina BIM 13

villetta trifamiliare 4 strade bientina BIM 14